淀屋橋の駅前ビル 1階路面店舗(約10.78坪)※飲食不可
- minoruhirano0829
- 2025年12月8日
- 読了時間: 1分

【物件番号:TE0076】
物件公開日:2025年12月8日
所在地:大阪市中央区北浜3丁目
築年月:1982年2月 構造:SRC造11階建地下1階付き
アクセス
大阪メトロ御堂筋線 『淀屋橋』駅 徒歩1分
京阪本線 『淀屋橋』駅 徒歩2分
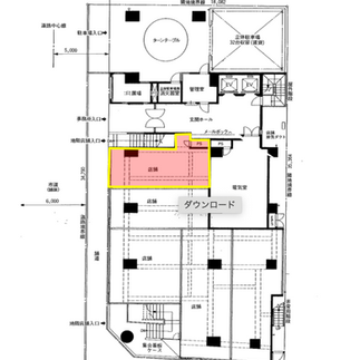
所在階:1階 広さ:35.64㎡(10.78坪)
現況:空室 現状:店舗仕様 引渡時期:即
取引態様:仲介(媒介)
敷金:2,100,000円 礼金:1,150,000円(税込)
賃料:385,000円(税込) 管理費:0円(税込)
~・~・~・~・~・~・~・~・~・~・~・~・~
淀屋橋の駅前にある商業ビルの1階路面店舗です。
元:調剤薬局
現状有姿、現状渡し
広さは、約10坪
オススメ業種は、
各種営業所、代理店など
物販店
※飲食店はNG
お問い合わせ、お待ちしております!






![[TE0102] 敷礼0! 独立開業や趣味のお店にオススメ! 約5坪のBar居抜き店舗※カラオケもOK](https://static.wixstatic.com/media/2b38f3_1c244d13ac0448108516721c2c6c5694~mv2.jpeg/v1/fill/w_980,h_1307,al_c,q_85,usm_0.66_1.00_0.01,enc_avif,quality_auto/2b38f3_1c244d13ac0448108516721c2c6c5694~mv2.jpeg)


コメント